Дренажный поддон ДП-СОМ
Дренажный поддон ДП-СОМ предназначен для сбора и удаления конденсата.
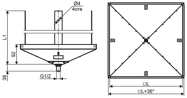
Поддон крепится к стакану опорному монтажному СОМ до установки крышного вентилятора. Крепление поддона осуществляется четырьмя специальными болтами.
Для отвода конденсата в нижней части днища предусмотрен штуцер, к которому может быть присоединена дренажная труба.
Габаритные и присоединительные размеры (мм)

* Только для моделей с 1090 по 1370.
|
Модель дренажного поддона |
L |
L1 |
Масса, кг |
Модель стакана опорного монтажного СОМ |
|
355 |
405 |
1515 |
3.8 |
СОМ-3,55 |
|
400 |
450 |
1517 |
4.0 |
СОМ-4,0 |
|
450 |
500 |
1518 |
4.3 |
СОМ-4,5 |
|
500 |
550 |
1519 |
4.6 |
СОМ-5,0 |
|
560 |
610 |
1520 |
7.0 |
СОМ-5,6 |
|
630 |
680 |
1521 |
8.0 |
СОМ-6,3 |
|
710 |
760 |
1522 |
9.2 |
СОМ-7,1 |
|
880 |
930 |
1523 |
12.2 |
СОМ-8,0 |
|
900 |
950 |
1523 |
12.6 |
СОМ-9,0 |
|
1090 |
1140 |
1524 |
22.0 |
СОМ-10,0 |
|
1120 |
1170 |
1524 |
22.9 |
СОМ-11,2 |
|
1370 |
1420 |
1525 |
31.5 |
СОМ-12,5 |
Не представленные в наличии модели доступны к поставке под заказ
Оповестить о поступлении
Всю необходимую информацию также можно получить по телефону «горячей линии»
+ 7 800 200 93 96или по телефону
+7 800 505 08 67 получить консультацию
